管道式流量計的安裝位置
點擊次數:2820 發布時間:2021-11-05 09:14:53
**我們來聊聊管道式流量計的安裝位置和方向的選擇!
環境考慮因素
為了確保*長的變送器使用壽命,應避免極端溫度和過度振動。典型問題場所如下:
· 在高振動管線上安裝一體安裝式變送器
· 熱帶/沙漠地區直射陽光下安裝
· 在極寒氣候下采用戶外安裝
分體式安裝的變送器可安裝在控制室中以保護電子板免受惡劣環境的影響,并易于組態或維修。
上游和下游管道
為了確保過程條件大幅度變化的情況下的規定精度,安裝傳感器時,在電極平面上游留出至少五倍管徑長度的直管段,在電極平面下游留出至少兩倍管徑長度的直管段。
上游和下游直管段管徑倍數

A. 五倍管徑(上游)
B. 兩倍管徑(下游)
C. 流向
安裝時可以縮短上游和下游直管段。對于減徑直管段安裝,儀表有可能達不到絕對精度。流量讀數仍將具有很高的可重復性。
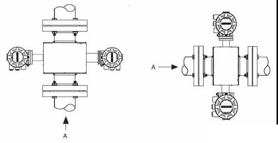
流向
安裝傳感器時,應使箭頭指向流量方向。
傳感器管道位置和方向
傳感器應安裝在能確保在運行期間保持滿管的位置上。根據安裝位置,還必須考慮方向。
· 過程流體向上流動的垂直安裝可使截面保持滿管,不受流量影響。
· 水平安裝應限制為低管段,以保證滿管。
傳感器方向

A. 流向
電極方向
如果兩個測量電極處于 3 點鐘和 9 點鐘位置或與水平方向成 45 度以下角度,如 圖 3-4 左側所示,則傳感器電極的朝向正確。避免使傳感器的頂部與垂直位置成 90 度角(如 圖右側所示)的任何安裝朝向。
電極方向

A. 正確朝向
B. 錯誤朝向
傳感器有可能需要處于特定朝向,以便符合危險區域 T 代碼等級。請參考說明書,了解任何可能的限制。
上一篇:鹽酸管道計量表選型注意事項
下一篇:管道式流量計規格型號


